Students will make collages and use rulers to create scale drawings and find real life dimensions of objects. How to draw a floor plan to scale. Create a drawing of a two bedroom house.
bedroom scale drawing project

You are going to make a scale drawing of your room.
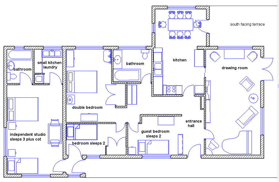
Bedroom scale drawing project. Bedroom scale drawing project. This is a suitable end of term real life maths project for ks3. You will measure the dimensions of your room in your house and the dimensions of at least 3 objects in the room. Your house must include a kitchen living room bathroom and two bedrooms.
You will then pick a reasonable scale and draw an aerial view sketch of your room like blueprints. If you are in real estate allow potential homebuyers to clearly see the layout and potential of the property. It consists of two worksheets one instructions and the other is to be filled out by students. Bedroom is 125 feet long.
Then most likely you have had to use a scale drawing. Scale drawing scale models measurement rubric category 1 beginning 2 developing 3. A what scale was used to draw the floor plan. Roomsketcher 2d floor plans provide a clean and simple visual overview of the property.
You must include the measurements of the room on the drawing measurements must be exact. The self column of the rubric and turn this in with your project. Sketching a rough outline on paper can be useful for planning a room arrangement but taking the time to draw a floor plan to scale is often worth the extra effort. Prev article next article.
Scale drawing math project 1. In addition to the project and. Picture of arrange furniture more easily create a scale drawing with movable 4 scale drawing example bedroom scale drawing project. For interior design users a 2d floor plan is a great starting point for your project.
Scale drawings and models have you ever looked at a map sewed a piece of clothing built a model or assembled a piece of ikea furniture. You should know what needs to be done each day in order to meet the deadline. Topics covered are area scale drawing and working to a budget. Scale floor plans aid the design.
Ccssmathcontent7ga1 solve problems involving scale drawings of geometric figures including computing actual lengths and areas from a scale drawing and reproducing a scale drawing at a different scale. 2d floor plans for online and print. Room floor walls doors and counters are re created to scale. Masuzi 8 months ago no comments.
You must must must have the next step of the project in mind. Design a dream bedroom make math more. Any additional rooms are optional. Scale drawing of bedroom project scale drawing of a bedroom with measurements free printable math worksheets for adults scale drawing of a bedroom scale drawing bedroom worksheet math fractions worksheet how to make a scale drawing of a bedroom how to do a scale drawing of a bedroom 6th grade math multiplication worksheets.




















